Awatere

Aerial view of a large residential development with multiple housing units, green spaces, and trees, laid out in organized blocks with roads and pathways.

Home Area: 157.80m²

Bedrooms: 3

Bathroom: 2

Lounge/Dining: 1

Garage: Double

Awatere Section Information

Floor plan of a house with labeled rooms, 3D front and side views, 2D rear view, and color options for cladding.
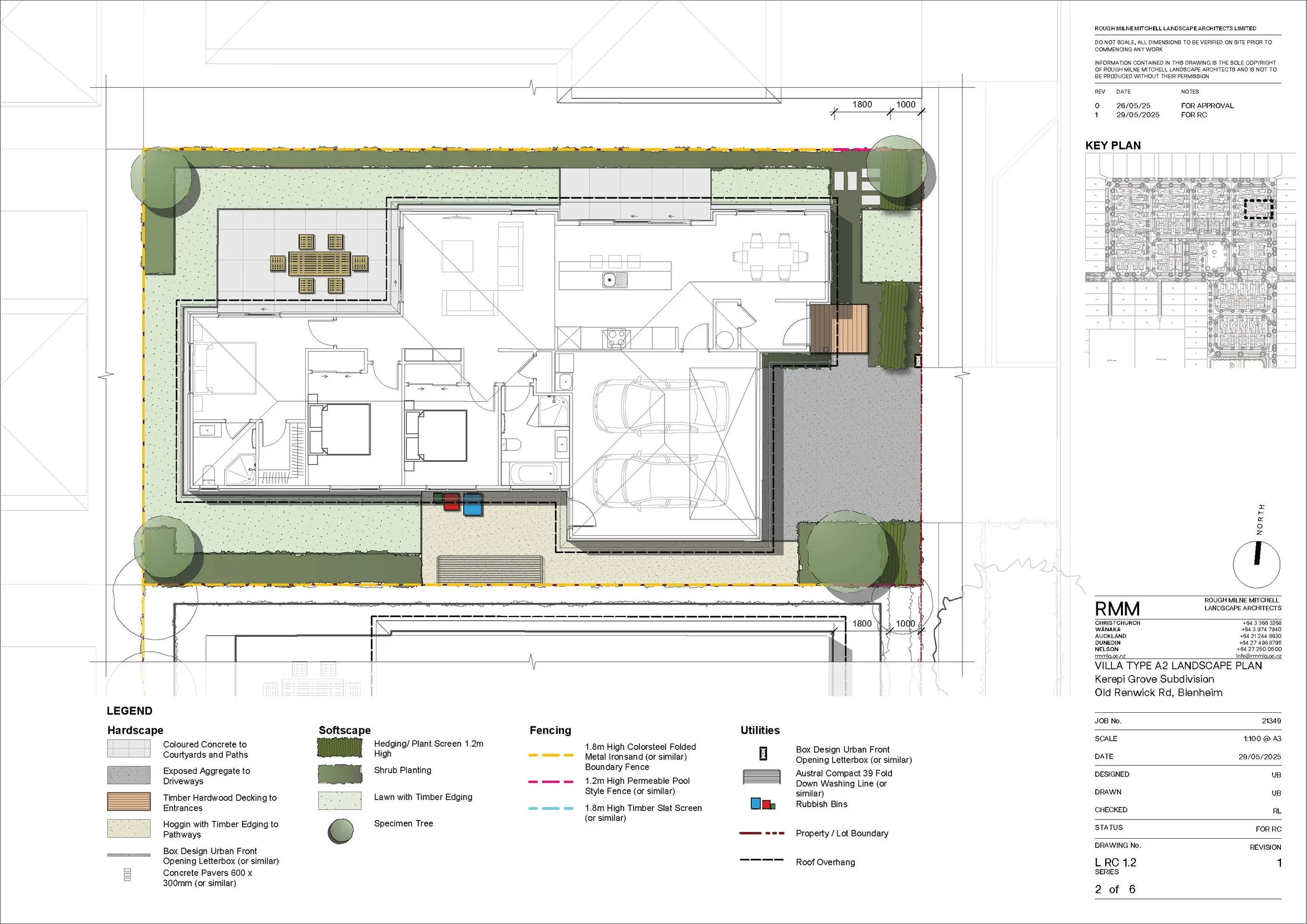
This is a detailed landscape architecture plan for a residential property, including the house layout, outdoor areas, driveway, fencing, planting, and other landscape features. The plan shows the placement of trees, hardscape, softscape, utilities, and boundary lines.
  • Lot 45

  • Lot 48

  • Lot 100

  • Lot 102

  • Lot 132

  • Lot 134

  • Lot 137

  • Lot 141

Awatere Sections Available

  • Lot 144

  • Lot 148

  • Lot 150

  • Lot 152

  • Lot 154

Register Your Interest.